アネックス3811 110号室
1R(ワンルーム) / 家賃 53,000円
共益費 3,000円
石川県金沢市西念3丁目8-25物件概要
- 入居可能日
- 即入居可
- 敷金
- 2ヶ月
- 礼金
- -
- 家賃
- 53,000円
- 共益費等
- 3,000円
- 駐車場
- 5,500円
- 町費
- 400円
- 水道料
- -
- 住宅保険
- あり
- 鍵交換代金
- 22,000円
- めやす賃料
- 58,208円 めやす賃料とは?
- 仲介料
- (家賃+駐車場) ✕ 消費税
- その他費用
- 暮らすコンシェルジュPrime+M3,993円(税込み)
- 契約時費用
- インターネット初回事務手数料11,000円(税込み)
暮らすコンシェルジュ+M加入金28,600円(税込み) - 退去時費用
- -
- 更新事務手数料
- 58,300円
- 契約形態
- 普通借家2年
- 建物種別
- 賃貸マンション
- 竣工年月
- 2001年01月
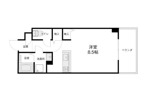
- 間取り
- 1R(ワンルーム)
- 専有面積
- 26.82㎡
- 構造
- RC(鉄筋コンクリート造)
- 階建
- 3階建(1階部分)
- 部屋向き
- 南西
- 総戸数
- 30戸
- 交通
-
北陸鉄道浅野川線/ 上諸江駅 徒歩 16 分
- 取引態様
- 代理
- 入居条件
- 法人契約の場合敷金礼金2か月●同タイプ、別部屋の画像です●火災保険料は暮らすコンシェルジュPrime+Mに含む
- 周辺情報
- 金沢西病院 : 1140m/アルプラザ : 688m/ファミリーマート : 302m
- 特約
- 法人契約:暮らすコンシェルジュLight+M(2,090円/月額)、暮らすコンシェルジュ+M加入金(19,800円/初回のみ)必須
- 備考
- -
- 設備
-
- バス・トイレ別
- 室内洗濯機置場
- エアコン付き
- 独立洗面台
- 温水洗浄便座
- コンロ2口以上
- システムキッチン
- 駐輪場
- バルコニー・ベランダ
- 都市ガス
- BSアンテナ
- ケーブルテレビ(CATV)
- TVモニタ付きインターホン
- 照明器具
- 南向き
- 1階の物件
- 特徴
-
- 保証人不要・代行
- インターネット無料
- 情報更新日
- 2025年12月02日
- 次回更新予定日
- 「情報更新日」の日付から14日以内
取り扱い店舗
- 店舗名
- GO賃貸・金沢けやき通り店
- 所在地
- 石川県金沢市西念4-24-21
- TEL
- 076-233-3010
- keyaki@crasco.jp
- 免許番号
- 国土交通大臣(3)第8818号
- 営業時間
- AM9:30〜PM5:30
- 定休日
- 毎週水曜日/祝日(1〜3月を除く)/年末年始/ 5月大型連休/夏期休暇
以下の3つの見学方法からお選びください
サポート付き案内
スタッフ同行またはタクシーにてご案内いたします。
スマホ案内
スマホ案内は、気になるお部屋をzoomやFacetimeなどの動画通話でリアルタイムで見学できるサービスです。 サービスは無料でご利用できますので、お気軽にお申し込みください。
じぶんで内見
じぶんで内見は事前予約制なので、ご自身の都合の良い時間を指定して、自由に物件をご内見いただけます。 過度なセールスを受ける心配はありません。ゆっくりと自分の目的に合った物件を判断できます。

スタッフコメント
建物コメント
インターネット無料 金沢市西念の都市ガス鉄筋コンクリート造マンション!
石川県金沢市西念2丁目に位置する3階建てマンションです。 金沢駅まで乗り換えなしの立地が魅力的な物件です! インターネットを無料で利用できるため、毎月のコストも抑えられます。 ♦周辺環境 アル・プラザ金沢:徒歩9分(約700m) ファミリーマート:徒歩4分(約300m) クスリのアオキ :徒歩約4分(約300m) と生活に便利な施設が揃っています。 建物はRC造で、耐震性や防音性に優れています。隣の部屋の音が気になりにくいのも魅力的なポイントですね! 収納が二つあり荷物の多い方にもおすすめです。 単身の方で駅西エリアでお部屋を探している方にオススメの物件となります! 都市ガス物件でランニングコストも抑えられるので初めての一人暮らしの方にもぴったりですね! この物件が気になった方はぜひお問い合わせください。 スタッフ一同お待ちしております!
お部屋コメント
インターネット無料!ご入居時よりすぐにお使いいただけます!
都市ガスで月々のランニングコストを抑えられます!周辺にはドラッグストアやコンビニがあり、50m道路へもアクセスしやすい立地です!