物件概要
- 入居可能日
- 仮止中
- 敷金
- 2ヶ月
- 礼金
- -
- 家賃
- 80,000円
- 共益費等
- 5,000円
- 駐車場
- 4,400円
- 町費
- -
- 水道料
- -
- 住宅保険
- あり
- 鍵交換代金
- 22,000円
- めやす賃料
- 88,333円 めやす賃料とは?
- 仲介料
- (家賃+駐車場) ✕ 消費税
- その他費用
- 暮らすコンシェルジュPrime+M3,993円(税込み)
- 契約時費用
- ファイテック13,200円(税込み)
暮らすコンシェルジュ+M加入金28,600円(税込み) - 退去時費用
- -
- 更新事務手数料
- 1.1ヶ月
- 契約形態
- 普通借家2年
- 建物種別
- 賃貸マンション
- 竣工年月
- 1986年09月
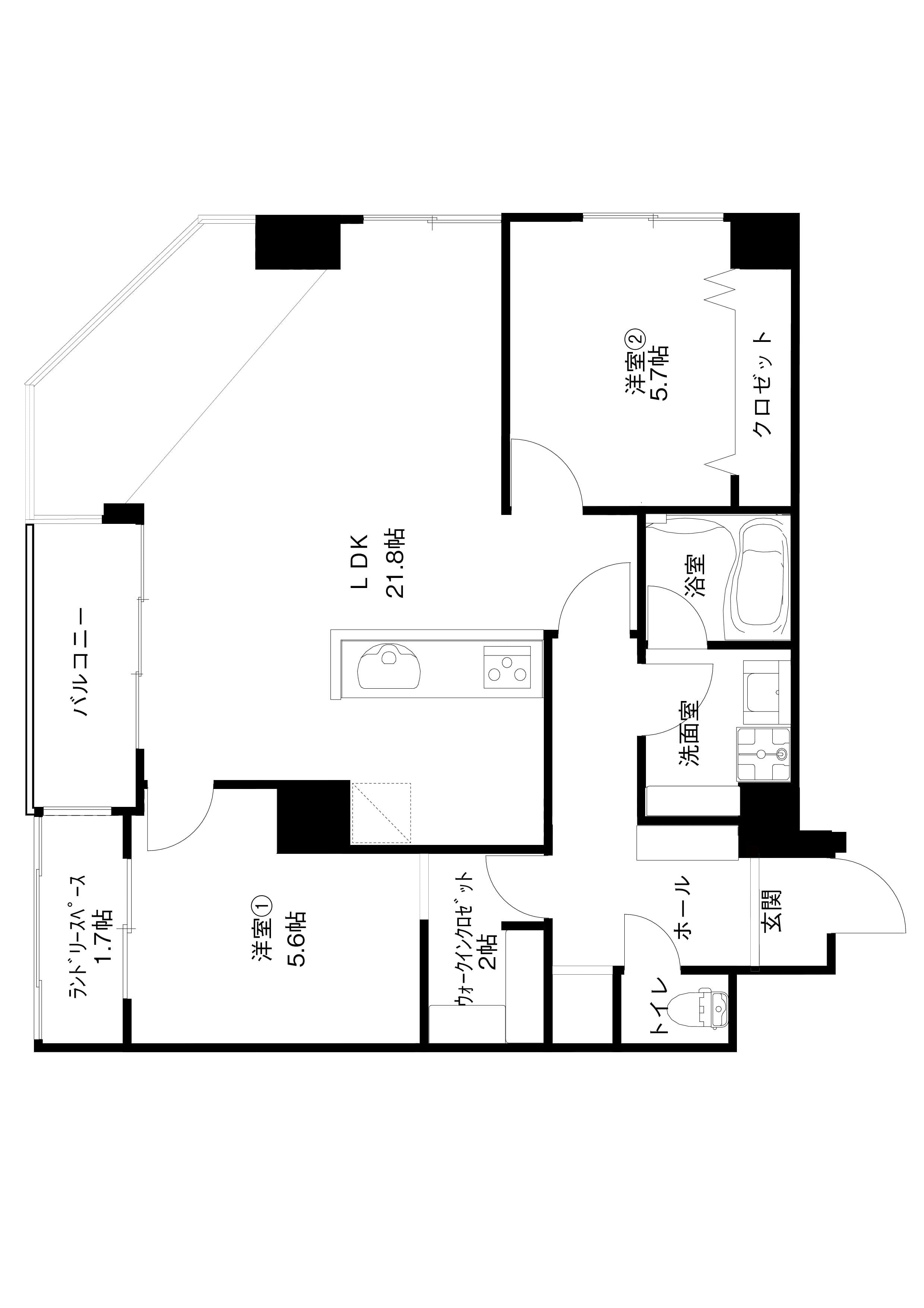
- 間取り
- 2LDK
- 専有面積
- 72㎡
- 構造
- RC(鉄筋コンクリート造)
- 階建
- 6階建(2階部分)
- 部屋向き
- 東
- 総戸数
- 30戸
- 交通
-
IRいしかわ鉄道/ 金沢駅 バス30分
バス停 扇が丘 徒歩 3 分 - 取引態様
- 代理
- 入居条件
- 2025.11.30解約予定●保証人不要・代行●火災保険料・消臭抗菌代は暮らすコンシェルジュPrime+Mに含む。
- 周辺情報
- 赤十字病院 : 790m/バロー : 640m/セブンイレブン : 10m
- 特約
- 法人契約:暮らすコンシェルジュライト(1,100円/月額)、暮らすコンシェルジュ加入金(13,200円/初回のみ)必須
- 備考
- -
- 設備
-
- バス・トイレ別
- 室内洗濯機置場
- エアコン付き
- 独立洗面台
- 温水洗浄便座
- 追い焚き機能付き
- コンロ2口以上
- システムキッチン
- 駐輪場
- エレベーター
- バルコニー・ベランダ
- プロパンガス
- カウンターキッチン
- サンルーム
- ウォークイン クローゼット
- TVモニタ付きインターホン
- 照明器具
- 防犯カメラ
- 2階以上
- 特徴
-
- 保証人不要・代行
- リノベーション
- デザイナーズ
- リフォーム
- 情報更新日
- 2025年12月02日
- 次回更新予定日
- 「情報更新日」の日付から14日以内
取り扱い店舗
- 店舗名
- GO賃貸・野々市店
- 所在地
- 石川県野々市市御経塚2-256
- TEL
- 076-269-0606
- nonoiti@crasco.jp
- 免許番号
- 国土交通大臣(3)第8818号
- 営業時間
- AM9:30〜PM5:30
- 定休日
- 毎週水曜日/祝日(1〜3月を除く)/年末年始/ 5月大型連休/夏期休暇
以下の3つの見学方法からお選びください
サポート付き案内
スタッフ同行またはタクシーにてご案内いたします。
スマホ案内
スマホ案内は、気になるお部屋をzoomやFacetimeなどの動画通話でリアルタイムで見学できるサービスです。 サービスは無料でご利用できますので、お気軽にお申し込みください。
じぶんで内見
じぶんで内見は事前予約制なので、ご自身の都合の良い時間を指定して、自由に物件をご内見いただけます。 過度なセールスを受ける心配はありません。ゆっくりと自分の目的に合った物件を判断できます。

スタッフコメント
建物コメント
エレベーター付きの鉄筋コンクリート造マンション。
【どんな物件?】 エレベーター付きのマンションで、上下移動もラクラク♪ 【どんな環境?】 建物すぐ隣にセブンイレブン、徒歩圏内にスーパー・飲食店多数あり生活便利。バス停「扇が丘」まで徒歩3分で金沢駅へのアクセスも良好です。 【この物件の特徴は?】 北陸に嬉しいサンルーム付きで、雨の日の洗濯も安心。ウォークインクローゼットなど収納力も高く、ゆとりある暮らしが実現できます。 【どのような人にオススメ?】 ファミリーやカップルの方、在宅ワークや趣味のスペースを確保したい方にピッタリ。金沢工業大学近くのため、教職員にもおすすめです。 この物件が気になる方はお気軽にご連絡下さい。 お電話・メールをおまちしております!
お部屋コメント
【リノベーション物件!エレベーター付きのマンションです!】
角部屋で開放感のあるお部屋でございます!北陸には嬉しいサンルーム付き、3口コンロ付きキッチン、ウォークインクローゼット等設備も充実しております!周辺には商業施設も多数あり生活環境良好です!